| 所在地 | 東京都豊島区池袋4丁目29-11 |
|---|---|
| 交通 |
山手線 池袋駅 徒歩10分 |
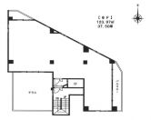
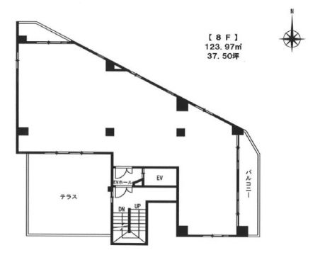
| 所在階(部屋番号) | 8階/9階建 |
| 面積 | 123.97m² |
| 賃料 | 300,000 円 |
| 礼金/敷金/保証金 | 1.0ヶ月 / / 4.0ヶ月 |
| 管理費/共益費 | 54,687円 / |
| 構造/築年月 | 鉄骨鉄筋コンクリート造/1985年12月 |
| コメント | ★池袋・平和通り 法務局の近くです! |
| 保険/保証料 | |
| 契約 | 未契約 |
| 情報更新日 | 2026年04月11日 |
| 情報有効期限 | 2026年04月25日 |
| 取引態様 | 仲介 |
| トウセン池袋ビルへのお問い合わせ先 | |
|---|---|
| 会社名 | 株式会社ストラットフォード |
| 住所 | 埼玉県さいたま市大宮区下町2-72 5階 |
| TEL | 048-650-8300 |
| 物件番号 | 0042-00000890 |